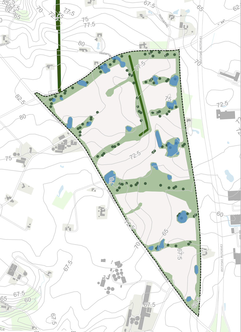
Princip - eksisterende og potentiel natur
- Den beskyttede natur er et aktiv.
- Naturområder og biotoper skal bevares og udvikles.
- Beskyttet natur skal omfattes af det samlende grønne som vist på kortbilaget herunder.
Den beskyttede natur og vandhullerne
Karakteristisk for det storbakkende landskab er de mange dalstrøg med vandløb og vådområder med tilknyttet natur. Særligt udbredt er søer samt mose- og engarealer med varierende fugtigheder. Her er vandet særligt karakterskabende med arter, som er tilpasset mere eller mindre vandmættet bund, og som tåler periodiske oversvømmelser eller permanent vanddække. Vegetationen er overvejende græsdominerede højstaudesamfund med rørskov og pilekrat, men også områder med varieret og lysåben urtevegetation, hvor der afgræsses eller tages høslæt. Øverst i dalstrøgene findes overvejende lysåbne, græsdominerede tørre enge og overdrev med arter, der er tilpasset tør jordbund.
Søer, moser, enge, overdrev og udpegede vandløb, som Holtvad Bæk og Tolstrup Å, er omfattet af naturbeskyttelseslovens § 3, og dermed beskyttet mod tilstandsændringer.
I planområdet findes beskyttede søer, som beskyttes med beskyttelseszone på mindst 25 meter i overensstemmelse med Kommuneplanen. Herved sikres også at de beskyttede padder, der potentielt lever her, ikke får forringet deres levesteder.
Naturtyperne bidrager til herlighed og variation og er rig på de vilde plante-, mos-, svampe og dyrearter, som findes naturligt i området.
Grønt Danmarkskort og potentiel natur
Den centrale del af planområdet er udpeget til fremtidig potentiel natur, som sammen med områder omfattet af naturbeskyttelse og økologiske forbindelser indgår i Grønt Danmarkskort.
Grønt Danmarkskort omfatter alle arealer, som allerede er naturmæssigt værdifulde eller har potentiale til at blive det. Udpegningen skal medvirke til at stoppe og vende tilbagegangen i biodiversitet.
Udpegning af dele af planområdets arealer til Grønt Danmarkskort skal medvirke til at stoppe og positivt vende tilbagegangen i biodiversiteten i Horsens Kommune.
Kortbilaget viser hvordan grønne kiler kan samle områdets natur.
Princip - Naturtyper i fremtiden
- Naturindholdet i planområdet tager udgangspunkt i de omkringliggende natutyper og småbiotoper.
- Planlægningen sikrer plads til forbedring af naturtyper og biotoper økosystemer.
- Beskyttet natur skal indgå som en en af de grønne kiler.
Naturtyper i fremtiden
Planområdet kan med fordel drage nytte af det eksisterende lokale naturindhold, som får gode vækstbetingelser i det fremtidige naturlige landskab, hvor vandet lægger sig i områdets lavninger og følger områdets strømningsveje.
I planområdet etableres grønne og blå kiler hvor der skabes fugtige lavtliggende arealer omkring eksisterende søer, nye regnvandsbassiner samt periodisk strømmende vand på overfladen. Her vil de planter og dyr, der er knyttet til eng, mose og sø kunne indvandre fra nærliggende naturområder.
Områder med tør, næringsfattig, og lysåben jordbund, vil ikke udgøre en stor andel i planområdet, men kan, hvor de opstår, udgøre etableringsmuligheder for overdrevsvegetation og dyrearter, der er tilknyttet tørre biotoper
De grønne kiler sikrer således spredningsmuligheder og flere leve- og fourageringssteder til arter, der allerede findes i området. Dette bidrager til at skabe mere sammenhængende og fungerende økosystemer.

Eksempler på hjemmehørende arter, som understøtter biodiversiteten

Eksempler på hjemmehørende arter, som understøtter biodiversiteten

