Principper for trafikbetjening
- En cykelsti skal forbinde den nuværende supercykelsti Egebjergstien mellem Horsens by og Nova med Østbirk hen over planområdet.
- Cykelstien skal være oplevelsesrig og et spændende alternativ til bilen.
- En kommende fysisk planlægning forudsætter, at vejadgang er fastlagt til bebyggelser på matr. nr. 10b, Gedved By, Tolstrup og matr. nr. 4a, Rådved By, Hansted.
- Den kommende planlægning må ikke hindre adgang til bebyggelser mellem planområdet og E45.
- En lokalplan skal afklare placering af adgangsveje til planområdet og deres oversigtsforhold.
- Adgang til området skal ske ved tilslutning til det kommunale vejnet i en afstand af mindst 700 meter fra tilslutningsanlæg TSA 55, Horsens Nord. Adgang tætterer på TSA 55 kan kun ske efter forhandling med Vejdirektoratet.
Trafikplan 2023 er gældende for området.
Trafikplanen kan læses her.
Trafikken i Horsens er hårdt belastet. Horsens vokser fra at være en provinsby til at være en stor by. Trafikplanen sætter den langsigtede retning for udviklingen på vej- og stinettet for bilister, cyklister og den kollektive trafik.
Den stigende transport skal imødekommes for, at byen vil forsætte sin positive vækst. Desværre har infrastrukturen ikke fulgt med den øvrige udvikling, hvilket betyder, at bilister i dag oplever kødannelser med spildtid til følge for både private og erhvervslivet. Cyklisterne mangler faciliteter og mere direkte ruter, som gør det attraktivt at færdes som cyklist rundt i byen. Den kollektive transport lider også under de samme udfordringer som bilisterne, da de sidder fast i de samme køer på vejnettet. Her vil en forbedring af fremkommeligheden derfor også være en fordel.
Det er målet at skabe bedre rammer for trafikanterne i Horsens og samle op på efterslæbet, så det bliver hurtigt og sikkert at bevæge sig rundt og byen kan forsætte sin fremgang.
Som opfølgning på trafikplanen er der i 2018 etableret nyt signalanlæg i Horsens Nord. Formålet er at forbedre afviklingen til og fra motorvejen.
Egebjergstien er etableret i 2018 - 2020. Stien skal være en attraktiv og sikker transportform.
Trafikbetjening af planområdet
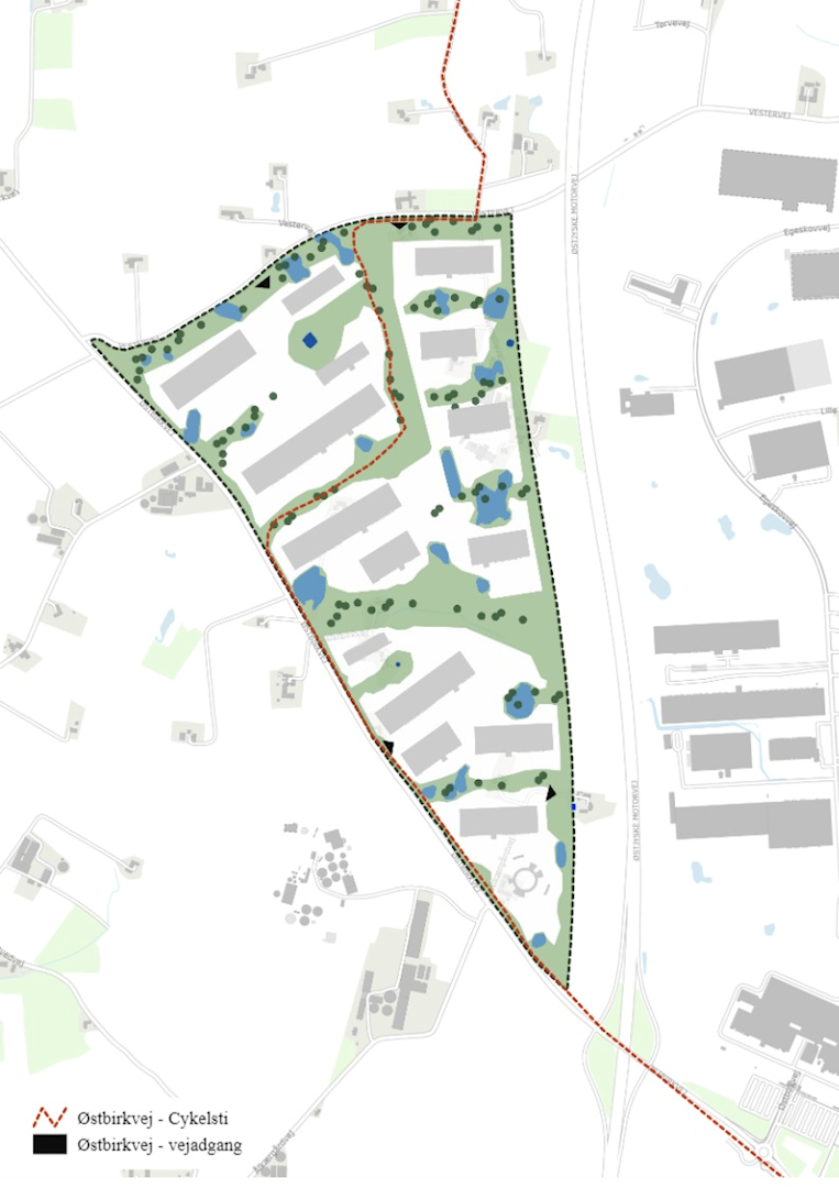
Planområdet får vejadgang med en overkørsel fra Østbirkvej og to fra Vestervej. En vejbyggelinje langs Østbirkvej sikrer mulighed for en udbygning af Østbirkvej i fremtiden, hvilket kan være en realitet inden for ca. 15 år fra vedtagelsen af en byggeretsgivende lokalplan. Horsens Kommune vurderer, at den sydlige del af erhvervsområdet og ca. 20 % af den nordlige del af erhvervsområdet er fuldt udbygget inden for ca. 15 år.
For at sikre plads til fremtidig udvidelse af supercykelstien mellem Horsens Midtby og Egebjerg helt til Østbirk, sikres plads hen over erhvervsområdet til en ny cykelstiforbindelse til Østbirk, som med fordel også kan betjene det fremtidige erhvervsområde.
Cykelstien er vist med en principiel placering på kortbilaget herunder.

Adgangsveje og principiel placering af cykelsti

Adgangsveje og principiel placering af cykelsti
